吊式煤礦用單軸圓振動篩生產廠家
煤礦圓振動篩-吊式煤礦用單軸圓振動篩生產廠家-型號參數報價示意圖 13353676726
	
 
	DD/ZD系列單軸振動篩產品概述: 
    礦用單軸振動篩/煤用單軸振動篩是一種作圓運動的振動篩。可供黑色、有色以及非金屬礦山的輔助或獨立篩分作業中作中等粒度的分級之用。奧創振動生產的DD/ZD系列礦用/煤用單軸振動篩篩機具有結構簡單,動轉平穩,工作可靠等優點。本系列單軸振動篩適用于煤炭、礦山、建材輕工、化工等行業對中細粒的分級單軸篩運動軌跡為圓,具有結構簡單、維修方便、作業可靠的優點。 礦用單軸振動篩/煤用單軸振動篩使用得到煤炭、礦山、建材、輕工、化工等行業的一致好評! 
	
 
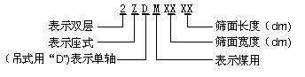
DD/ZD系列單軸振動篩產品型號說明:
	
 
DD/ZD系列單軸振動篩產品選型指導:
單軸振動篩有吊式和座式,層數有單層和雙層,傳動形式分左右,篩板有沖孔、編織(其中還有橡膠篩網)。
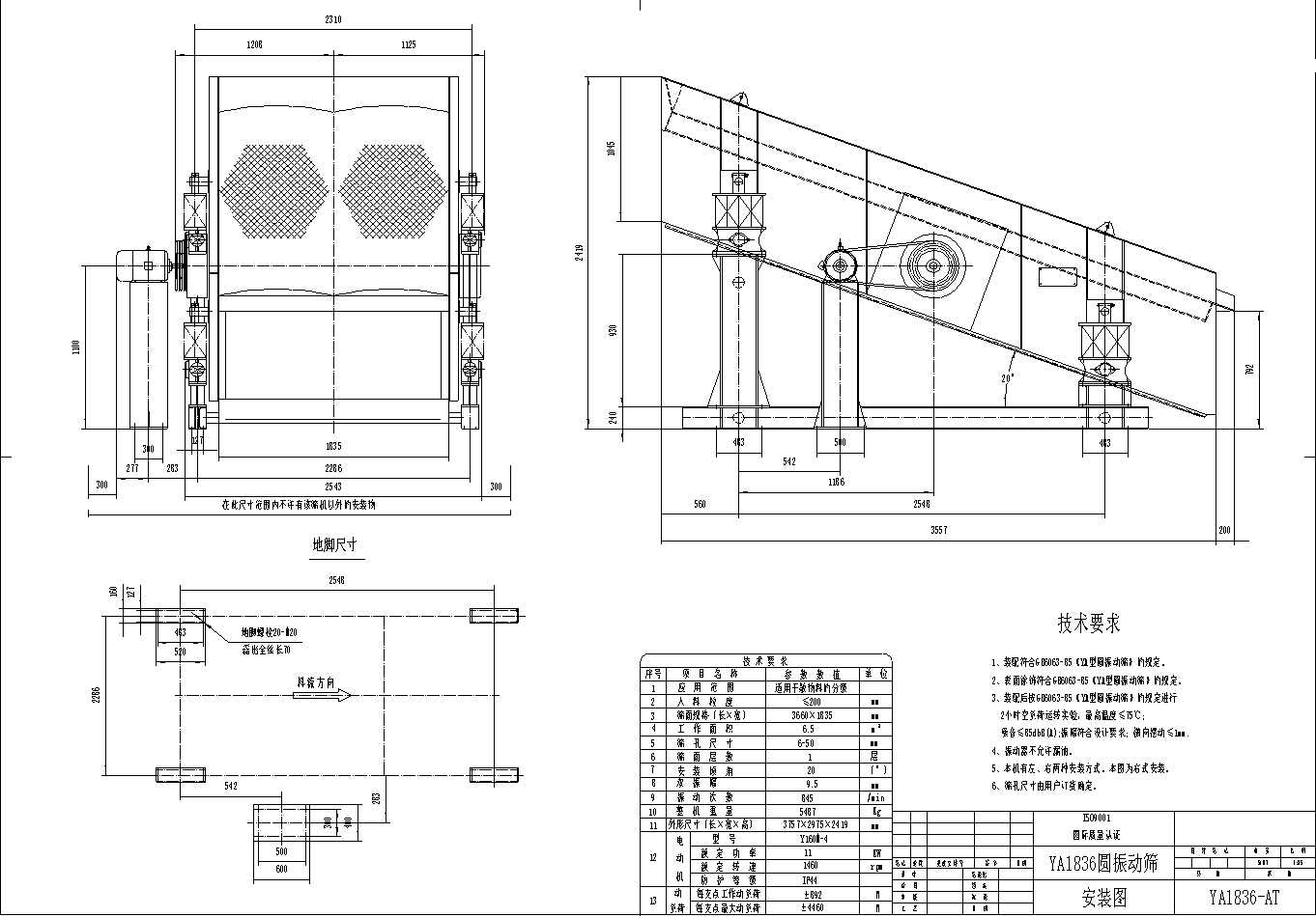
DD/ZD系列單軸振動篩產品外形示意圖:
	
 
DD/ZD系列單軸振動篩產品技術參數表:
| 
					 型 號  | 
				
					 篩網  | 
				
					 
						給料粒度  | 
				
					 
						生產能力  | 
				
					 
						振動  | 
				
					 
						雙振幅  | 
				
					 電動機  | 
				
					 
						外型尺寸  | 
				
					 
						安裝  | 
				
					 
						總重  | 
			||||
| 
					 層數  | 
				
					 面積(m2)  | 
				
					 篩孔尺寸mm  | 
				
					 篩網結構  | 
				
					 型號  | 
				
					 功率(kw)  | 
			||||||||
| 
					 DD918  | 
				
					 1  | 
				
					 1.6  | 
				
					 1-25  | 
				
					 鋼絲編織  | 
				
					 ≤60  | 
				
					 10-30  | 
				
					 1000  | 
				
					 5-6  | 
				
					 Y100L-4  | 
				
					 2.2  | 
				
					 2152X1418X575  | 
				
					 吊式  | 
				
					 440  | 
			
| 
					 2DD918  | 
				
					 2  | 
				
					 1.6  | 
				
					 1-25  | 
				
					 鋼絲編織  | 
				
					 ≤60  | 
				
					 10-30  | 
				
					 1000  | 
				
					 5-6  | 
				
					 Y100L-4  | 
				
					 2.2  | 
				
					 2200X1418X630  | 
				
					 吊式  | 
				
					 600  | 
			
| 
					 DDM1235  | 
				
					 1  | 
				
					 4  | 
				
					 500-100  | 
				
					 鋼絲編織  | 
				
					 ≤400  | 
				
					 150-210  | 
				
					 920  | 
				
					 6  | 
				
					 Y132S-4B3  | 
				
					 5.5  | 
				
					 3500X2166X2034  | 
				
					 吊式  | 
				
					 2112  | 
			
| 
					 DDM1556  | 
				
					 1  | 
				
					 8  | 
				
					 25-50  | 
				
					 沖孔  | 
				
					 ≤400  | 
				
					 400  | 
				
					 920  | 
				
					 6-8  | 
				
					 Y160M-4B3  | 
				
					 11  | 
				
					 5400X2460X2105  | 
				
					 吊式  | 
				
					 3376  | 
			
| 
					 2DDM1556  | 
				
					 2  | 
				
					 8  | 
				
					 
						上25-100  | 
				
					 上沖下編  | 
				
					 ≤400  | 
				
					 
						上90-450  | 
				
					 1000  | 
				
					 6  | 
				
					 Y180M-4  | 
				
					 18.5  | 
				
					 5500X2100X2505  | 
				
					 吊式  | 
				
					 5096  | 
			
| 
					 DDM1740  | 
				
					 1  | 
				
					 7  | 
				
					 50-100  | 
				
					 沖孔  | 
				
					 ≤400  | 
				
					 240-360  | 
				
					 920  | 
				
					 5-7  | 
				
					 Y132M-4B3  | 
				
					 7.5  | 
				
					 3815X2646X2505  | 
				
					 吊式  | 
				
					 3092  | 
			
| 
					 DDM1756  | 
				
					 1  | 
				
					 9.5  | 
				
					 25-50  | 
				
					 沖孔  | 
				
					 ≤400  | 
				
					 270-540  | 
				
					 920  | 
				
					 5-7  | 
				
					 Y160T-4B3  | 
				
					 15  | 
				
					 5600X2783X2176  | 
				
					 吊式  | 
				
					 3995  | 
			
| 
					 DDM2056  | 
				
					 1  | 
				
					 11  | 
				
					 25-125  | 
				
					 沖孔  | 
				
					 ≤400  | 
				
					 300-1100  | 
				
					 920  | 
				
					 6-8  | 
				
					 180M-4B3  | 
				
					 18.5  | 
				
					 5662X3123X4469  | 
				
					 吊式  | 
				
					 4599  | 
			
| 
					 2DDM2056  | 
				
					 2  | 
				
					 11  | 
				
					 
						上25-100  | 
				
					 沖孔  | 
				
					 ≤400  | 
				
					 
						120-600  | 
				
					 1000  | 
				
					 6-8  | 
				
					 Y180M-4  | 
				
					 18.5  | 
				
					 5500X3148X2350  | 
				
					 吊式  | 
				
					 5650  | 
			
| 
					 ZD918  | 
				
					 1  | 
				
					 1.6  | 
				
					 1-25  | 
				
					 編織  | 
				
					 ≤60  | 
				
					 10-30  | 
				
					 1000  | 
				
					 6  | 
				
					 Y100L-4  | 
				
					 2.2  | 
				
					 2150X1418X575  | 
				
					 吊式  | 
				
					 553  | 
			
| 
					 2ZD918  | 
				
					 2  | 
				
					 1.6  | 
				
					 1-25  | 
				
					 編織  | 
				
					 ≤50  | 
				
					 10-30  | 
				
					 1000  | 
				
					 6  | 
				
					 Y100L-4  | 
				
					 2.2  | 
				
					 2200X1418X565  | 
				
					 座式  | 
				
					 702  | 
			
| 
					 ZD1224  | 
				
					 1  | 
				
					 2.9  | 
				
					 6-40  | 
				
					 編織  | 
				
					 ≤100  | 
				
					 70-210  | 
				
					 1000  | 
				
					 0-7  | 
				
					 Y112M-4  | 
				
					 4  | 
				
					 2500X2150X1340  | 
				
					 座式  | 
				
					 1130  | 
			
| 
					 2ZD1224  | 
				
					 2  | 
				
					 2.9  | 
				
					 6-40  | 
				
					 編織  | 
				
					 ≤100  | 
				
					 70-210  | 
				
					 850  | 
				
					 0-7  | 
				
					 Y112M-4  | 
				
					 4  | 
				
					 2600X2200X1780  | 
				
					 座式  | 
				
					 1545  | 
			
| 
					 ZD1224J  | 
				
					 1  | 
				
					 2.9  | 
				
					 11x42 13x42 26x35  | 
				
					 橡膠  | 
				
					 ≤100  | 
				
					 70-210  | 
				
					 850  | 
				
					 3.5  | 
				
					 Y112M-4  | 
				
					 4  | 
				
					 2500X2150X1340  | 
				
					 座式  | 
				
					 1086  | 
			
| 
					 2ZD124J  | 
				
					 2  | 
				
					 2.9  | 
				
					 13x42 29x35 48x58  | 
				
					 橡膠  | 
				
					 ≤100  | 
				
					 70-210  | 
				
					 800  | 
				
					 3.5  | 
				
					 Y112M-4  | 
				
					 4  | 
				
					 2600X2200X1780  | 
				
					 座式  | 
				
					 1637  | 
			
| 
					 ZDM1235  | 
				
					 1  | 
				
					 4  | 
				
					 50-100  | 
				
					 沖孔  | 
				
					 ≤400  | 
				
					 150-210  | 
				
					 920  | 
				
					 7  | 
				
					 Y132-4B3  | 
				
					 5.5  | 
				
					 3338X2210X1853  | 
				
					 座式  | 
				
					 2235  | 
			
| 
					 ZD1530  | 
				
					 1  | 
				
					 4.5  | 
				
					 6-50  | 
				
					 鋼絲編織  | 
				
					 ≤100  | 
				
					 90-270  | 
				
					 920  | 
				
					 6-7  | 
				
					 Y132S-4  | 
				
					 5.5  | 
				
					 3100X2690X1570  | 
				
					 座式  | 
				
					 1650  | 
			
| 
					 2ZD150  | 
				
					 2  | 
				
					 4.5  | 
				
					 6-50  | 
				
					 鋼絲編織  | 
				
					 ≤100  | 
				
					 90-270  | 
				
					 850  | 
				
					 6-7  | 
				
					 Y132S-4  | 
				
					 5.5  | 
				
					 3100X2690X2250  | 
				
					 座式  | 
				
					 2260  | 
			
| 
					 ZD153J  | 
				
					 
  | 
				
					 4.5  | 
				
					 11x42  | 
				
					 橡膠  | 
				
					 ≤150  | 
				
					 90-270  | 
				
					 850  | 
				
					 7  | 
				
					 132-4  | 
				
					 5.5  | 
				
					 3100X2690X1570  | 
				
					 座式  | 
				
					 2260  | 
			
| 
					 2ZD1530J  | 
				
					 
  | 
				
					 4.5  | 
				
					 
						13x2   | 
				
					 橡膠  | 
				
					 ≤100  | 
				
					 90-270  | 
				
					 850  | 
				
					 7  | 
				
					 Y132S-4  | 
				
					 5.5  | 
				
					 3200X2690X2250  | 
				
					 座式  | 
				
					 2653  | 
			
| 
					 ZD1540  | 
				
					 1  | 
				
					 6  | 
				
					 650  | 
				
					 鋼絲編織  | 
				
					 ≤100  | 
				
					 90-270  | 
				
					 850  | 
				
					 7  | 
				
					 Y132M-4  | 
				
					 7.5  | 
				
					 4000X2505X2028  | 
				
					 座式  | 
				
					 2070  | 
			
| 
					 2ZD1540  | 
				
					 2  | 
				
					 6  | 
				
					 6-50  | 
				
					 鋼絲編織  | 
				
					 ≤100  | 
				
					 90-270  | 
				
					 850  | 
				
					 7  | 
				
					 Y132M-4  | 
				
					 7.5  | 
				
					 4200X2600X2660  | 
				
					 座式  | 
				
					 2850  | 
			
| 
					 ZDM1556  | 
				
					 1  | 
				
					 8  | 
				
					 25-50  | 
				
					 沖孔  | 
				
					 ≤400  | 
				
					 225-450  | 
				
					 920  | 
				
					 6-8  | 
				
					 Y160m-4  | 
				
					 11  | 
				
					 5410X2466X2256  | 
				
					 座式  | 
				
					 3611  | 
			
| 
					 2ZDM1556  | 
				
					 2  | 
				
					 8  | 
				
					 
						上25-50  | 
				
					 沖孔  | 
				
					 ≤400  | 
				
					 30-300  | 
				
					 1000  | 
				
					 6-8  | 
				
					 Y180m-4B3  | 
				
					 18.5  | 
				
					 5500X2860X3049  | 
				
					 座式  | 
				
					 5347  | 
			
| 
					 ZDM1740  | 
				
					 1  | 
				
					 7  | 
				
					 50-100  | 
				
					 沖孔  | 
				
					 ≤400  | 
				
					 270-400  | 
				
					 920  | 
				
					 5-7  | 
				
					 Y132M-4B3  | 
				
					 7.5  | 
				
					 3815X2694X2084  | 
				
					 座式  | 
				
					 3224  | 
			
| 
					 ZDM1756  | 
				
					 1  | 
				
					 9.5  | 
				
					 25-50  | 
				
					 沖孔  | 
				
					 ≤400  | 
				
					 270-540  | 
				
					 920  | 
				
					 5-7  | 
				
					 Y160L-4B3  | 
				
					 15  | 
				
					 5409X2858X2295  | 
				
					 座式  | 
				
					 4027  | 
			
| 
					 ZD1836  | 
				
					 1  | 
				
					 9.5  | 
				
					 6-50  | 
				
					 編織  | 
				
					 ≤150  | 
				
					 100-300  | 
				
					 850  | 
				
					 7  | 
				
					 Y160M-4  | 
				
					 11  | 
				
					 3670X2990X1807  | 
				
					 座式  | 
				
					 160  | 
			
| 
					 ZDM2056  | 
				
					 1  | 
				
					 11  | 
				
					 13-125  | 
				
					 編織  | 
				
					 ≤400  | 
				
					 100-1000  | 
				
					 920  | 
				
					 6-8  | 
				
					 Y180M-4  | 
				
					 18.5  | 
				
					 5662X3096X2795  | 
				
					 座式  | 
				
					 5991  | 
			
| 
					 2ZDM2056  | 
				
					 2  | 
				
					 11  | 
				
					 
						上25-100  | 
				
					 上沖下編  | 
				
					 ≤400  | 
				
					 120-600  | 
				
					 1000  | 
				
					 6-8  | 
				
					 Y180M-4B3  | 
				
					 18.5  | 
				
					 5500X3360X2986  | 
				
					 座式  | 
				
					 5891  | 
			
| 
					 2ZDM2056G  | 
				
					 2  | 
				
					 11  | 
				
					 
						上25-100  | 
				
					 上編下條  | 
				
					 ≤400  | 
				
					 200-400  | 
				
					 800  | 
				
					 6.7  | 
				
					 Y180M-4B3  | 
				
					 18.5  | 
				
					 5600X3516X2870  | 
				
					 座式  | 
				
					 9864  | 
			
| 
					 ZD2160  | 
				
					 1  | 
				
					 12.  | 
				
					 10-5  | 
				
					 橡膠  | 
				
					 ≤150  | 
				
					 100-300  | 
				
					 900  | 
				
					 8  | 
				
					 Y180L-4  | 
				
					 22  | 
				
					 6676X2420X1600  | 
				
					 座式  | 
				
					 6529  | 
			
| 
					 ZD1836J  | 
				
					 1  | 
				
					 6.5  | 
				
					 
						43x58  | 
				
					 橡膠  | 
				
					 ≤150  | 
				
					 100-300  | 
				
					 850  | 
				
					 7  | 
				
					 Y160M-4  | 
				
					 11  | 
				
					 3600X2456X1480  | 
				
					 座式  | 
				
					 475  | 
			
DD/ZD系列單軸振動篩產品選型及訂貨須知:
單軸振動篩分為吊式和座式,層數有單層和雙層,傳動形式分左右,篩板有沖孔、編織(其中還有橡膠篩網),訂貨須注明篩板結構篩孔尺寸。
	
 
	河南奧創機械-機械設備生產廠家-提供價格方案流程安裝,主營制造各類振動篩分機,輸送機,提升機,給料機,除塵器等,整機質保
[奧創機械]-微信手機同號13353676726


