LS/GX系列螺旋輸送機產品介紹
 
螺旋輸送機說明:
LS/GX系列螺旋輸送機產品概述:
LS型螺旋輸送機等效采用ISO1050-75標準,設計制造符合ZBJ81005.1~2-88《 LS螺旋輸送機 》專業標準。LS型螺旋輸送機直徑由100mm~1250mm,共十二種規格,分為單驅動和雙驅動兩種形式,單驅動螺旋機長度可達40m(特大型30m),雙驅動螺旋機采用中間斷開軸結構,長度可達80m(特大型60m),螺旋機長度每 0.5m 一檔,可根據需要選定,螺旋機頭部軸承、尾部軸承置于殼體外部減少了灰塵對軸承室的侵入提高了螺旋機關鍵件的使用壽命。中間吊軸承采用滾動、滑動可互換的兩種結構,阻力小、密封性強、耐磨性好。滑動軸承的軸瓦有粉末冶金、尼龍和巴氏合金等多種材料供用戶根據不同的場合選用。吊軸承機外側置式油杯,便于集中加油潤滑。進出料口位置布置靈活,并增設電動型出料口,便于自動控制,還可根據用戶要求,配置測速報警裝置。
LS型螺旋機一直被廣泛用于國民經濟各部門,如建材、冶金、化工、電力、煤炭、機械、輕工、糧食及食品行業,適宜輸送粉狀、顆粒狀、小塊狀物料,如水泥、煤粉、糧食、化肥、灰渣、沙子、焦炭等.不宜輸送易變質、粘性大、易結塊的物料,LS螺旋輸送機工作環境溫度通常為-20~40℃,輸送物料的溫度一般為-20~80℃,LS螺旋輸送機適宜水平和小傾角布置,傾角以不超過15°為宜,如傾斜角度過大請選用GX系列螺旋輸送機,或與我公司技術部門聯系進行單獨設計。
	
 
LS/GX系列螺旋輸送機主要特點及工作原理:
1.承載能力大、安全可靠。
2.適應性強、安裝維修方便、壽命長。
3.整機體積小、轉速高、確保快速均勻輸送。
4.密封性好、外殼采用無縫鋼管制作,端部采用法蘭互相連接成一體,剛性好。
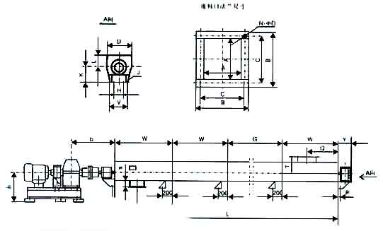
LS/GX系列螺旋輸送機安裝示意圖:
	
 
LS\GX系列螺旋輸送機主要技術參數:
	
 
| 
				 LS型  | 
			
				 100  | 
			
				 160  | 
			
				 200  | 
			
				 250  | 
			
				 315  | 
			
				 400  | 
			
				 500  | 
			
				 630  | 
			
				 800  | 
			
				 1000  | 
			
				 1250  | 
		
| 
				 GX型  | 
			
				 | 
			
				 | 
			
				 200  | 
			
				 250  | 
			
				 300  | 
			
				 400  | 
			
				 500  | 
			
				 | 
			
				 | 
			
				 | 
			
				 | 
		
| 
				 螺旋直徑(mm)  | 
			
				 100  | 
			
				 160  | 
			
				 200  | 
			
				 250  | 
			
				 315  | 
			
				 400  | 
			
				 500  | 
			
				 630  | 
			
				 800  | 
			
				 1000  | 
			
				 1250  | 
		
| 
				 螺距(mm)  | 
			
				 100  | 
			
				 160  | 
			
				 200  | 
			
				 250  | 
			
				 315  | 
			
				 355  | 
			
				 400  | 
			
				 450  | 
			
				 500  | 
			
				 560  | 
			
				 630  | 
		
| 
				 轉速(r/min)  | 
			
				 140  | 
			
				 120  | 
			
				 90  | 
			
				 90  | 
			
				 75  | 
			
				 75  | 
			
				 60  | 
			
				 60  | 
			
				 45  | 
			
				 35  | 
			
				 30  | 
		
| 
				 輸送量QΦ=0.33(m3/h)  | 
			
				 2.2  | 
			
				 7.6  | 
			
				 11  | 
			
				 22  | 
			
				 36.4  | 
			
				 66.1  | 
			
				 93.1  | 
			
				 160  | 
			
				 223  | 
			
				 304  | 
			
				 458  | 
		
| 
				 功率Pd 1=10m(KW)  | 
			
				 1.1  | 
			
				 1.5  | 
			
				 2.2  | 
			
				 2.4  | 
			
				 3.2  | 
			
				 5.1  | 
			
				 4.1  | 
			
				 8.6  | 
			
				 12  | 
			
				 16  | 
			
				 24.4  | 
		
| 
				 功率Pd 1=30m(KW)  | 
			
				 1.6  | 
			
				 2.8  | 
			
				 3.2  | 
			
				 5.3  | 
			
				 8.4  | 
			
				 11  | 
			
				 15.3  | 
			
				 25.9  | 
			
				 36  | 
			
				 48  | 
			
				 73.3  | 
		
| 
				 轉速(r/min)  | 
			
				 120  | 
			
				 90  | 
			
				 75  | 
			
				 75  | 
			
				 60  | 
			
				 60  | 
			
				 45  | 
			
				 45  | 
			
				 35  | 
			
				 30  | 
			
				 20  | 
		
| 
				 輸送量QΦ=0.33(m3/h)  | 
			
				 1.9  | 
			
				 5.7  | 
			
				 18  | 
			
				 18  | 
			
				 29.1  | 
			
				 52.9  | 
			
				 69.8  | 
			
				 125  | 
			
				 174  | 
			
				 261  | 
			
				 305  | 
		
| 
				 功率Pd 1=10m(KW)  | 
			
				 1.0  | 
			
				 1.3  | 
			
				 2.1  | 
			
				 2.1  | 
			
				 2.9  | 
			
				 4.1  | 
			
				 4.7  | 
			
				 6.8  | 
			
				 9.4  | 
			
				 14.1  | 
			
				 16.5  | 
		
| 
				 功率Pd 1=30m(KW)  | 
			
				 1.5  | 
			
				 2.3  | 
			
				 4.5  | 
			
				 4.5  | 
			
				 7  | 
			
				 8.9  | 
			
				 11.6  | 
			
				 20.4  | 
			
				 28.3  | 
			
				 42.2  | 
			
				 49.5  | 
		
| 
				 轉速(r/min)  | 
			
				 90  | 
			
				 75  | 
			
				 60  | 
			
				 60  | 
			
				 45  | 
			
				 45  | 
			
				 35  | 
			
				 35  | 
			
				 30  | 
			
				 20  | 
			
				 16  | 
		
| 
				 輸送量QΦ=0.33(m3/h)  | 
			
				 1.4  | 
			
				 4.8  | 
			
				 15  | 
			
				 15  | 
			
				 21.8  | 
			
				 39.6  | 
			
				 54.3  | 
			
				 97  | 
			
				 149  | 
			
				 174  | 
			
				 244  | 
		
| 
				 功率Pd 1=10m(KW)  | 
			
				 0.9  | 
			
				 1.2  | 
			
				 1.9  | 
			
				 1.9  | 
			
				 2.5  | 
			
				 3.4  | 
			
				 4.3  | 
			
				 5.4  | 
			
				 8.1  | 
			
				 9.5  | 
			
				 13.3  | 
		
| 
				 功率Pd 1=30m(KW)  | 
			
				 1.2  | 
			
				 2.2  | 
			
				 3.8  | 
			
				 3.8  | 
			
				 5.4  | 
			
				 6.8  | 
			
				 9.2  | 
			
				 16  | 
			
				 24.4  | 
			
				 28.6  | 
			
				 39.9  | 
		
| 
				 轉速(r/min)  | 
			
				 75  | 
			
				 60  | 
			
				 45  | 
			
				 45  | 
			
				 35  | 
			
				 35  | 
			
				 30  | 
			
				 30  | 
			
				 20  | 
			
				 16  | 
			
				 13  | 
		
| 
				 輸送量QΦ=0.33(m3/h)  | 
			
				 1.2  | 
			
				 3.8  | 
			
				 11  | 
			
				 11  | 
			
				 17  | 
			
				 31.7  | 
			
				 46.5  | 
			
				 73.0  | 
			
				 99.3  | 
			
				 139  | 
			
				 199  | 
		
| 
				 功率Pd 1=10m(KW)  | 
			
				 0.75  | 
			
				 1.1  | 
			
				 1.6  | 
			
				 1.6  | 
			
				 2.1  | 
			
				 3.1  | 
			
				 3.7  | 
			
				 4.6  | 
			
				 5.7  | 
			
				 7.7  | 
			
				 11  | 
		
| 
				 功率Pd 1=30m(KW)  | 
			
				 1.1  | 
			
				 1.8  | 
			
				 3.4  | 
			
				 3.4  | 
			
				 4.4  | 
			
				 5.6  | 
			
				 8  | 
			
				 14  | 
			
				 16.7  | 
			
				 23.2  | 
			
				 33  | 
		
LS系列螺旋輸送機外型尺寸:
	
| 
				 型號  | 
			
				 W  | 
			
				 A  | 
			
				 B  | 
			
				 C  | 
			
				 D  | 
			
				 N  | 
			
				 Q  | 
			
				 Y  | 
			
				 L  | 
			
				 K  | 
			
				 R  | 
			
				 S  | 
			
				 P  | 
			
				 O  | 
			
				 H  | 
			
				 V  | 
			
				 J  | 
			
				 T  | 
			
				 G  | 
			
				 L  | 
		
| 
				 LS100  | 
			
				 2500  | 
			
				 100  | 
			
				 180  | 
			
				 146  | 
			
				 10  | 
			
				 4  | 
			
				 180  | 
			
				 190  | 
			
				 90  | 
			
				 112  | 
			
				 180  | 
			
				 112  | 
			
				 60  | 
			
				 178  | 
			
				 120  | 
			
				 160  | 
			
				 14  | 
			
				 163  | 
			
				 
					1500  | 
			
				 
					3500-  | 
		
| 
				 LS160  | 
			
				 2500  | 
			
				 160  | 
			
				 240  | 
			
				 206  | 
			
				 10  | 
			
				 4  | 
			
				 200  | 
			
				 190  | 
			
				 112  | 
			
				 150  | 
			
				 200  | 
			
				 150  | 
			
				 60  | 
			
				 270  | 
			
				 120  | 
			
				 160  | 
			
				 14  | 
			
				 190  | 
		||
| 
				 LS200  | 
			
				 3000  | 
			
				 200  | 
			
				 300  | 
			
				 256  | 
			
				 14  | 
			
				 8  | 
			
				 225  | 
			
				 190  | 
			
				 112  | 
			
				 180  | 
			
				 225  | 
			
				 180  | 
			
				 60  | 
			
				 308  | 
			
				 160  | 
			
				 200  | 
			
				 14  | 
			
				 212  | 
		||
| 
				 LS250  | 
			
				 3000  | 
			
				 250  | 
			
				 350  | 
			
				 306  | 
			
				 14  | 
			
				 8  | 
			
				 250  | 
			
				 190  | 
			
				 140  | 
			
				 224  | 
			
				 250  | 
			
				 224  | 
			
				 60  | 
			
				 336  | 
			
				 200  | 
			
				 250  | 
			
				 18  | 
			
				 240  | 
			
				 
					40000-  | 
		|
| 
				 LS315  | 
			
				 3000  | 
			
				 315  | 
			
				 425  | 
			
				 370  | 
			
				 14  | 
			
				 8  | 
			
				 330  | 
			
				 190  | 
			
				 214  | 
			
				 280  | 
			
				 390  | 
			
				 250  | 
			
				 60  | 
			
				 443  | 
			
				 300  | 
			
				 350  | 
			
				 20  | 
			
				 340  | 
		||
| 
				 LS400  | 
			
				 3000  | 
			
				 400  | 
			
				 500  | 
			
				 456  | 
			
				 14  | 
			
				 8  | 
			
				 3580  | 
			
				 190  | 
			
				 224  | 
			
				 355  | 
			
				 390  | 
			
				 280  | 
			
				 60  | 
			
				 533  | 
			
				 320  | 
			
				 400  | 
			
				 24  | 
			
				 384  | 
		||
| 
				 LS500  | 
			
				 3000  | 
			
				 500  | 
			
				 600  | 
			
				 556  | 
			
				 14  | 
			
				 8  | 
			
				 400  | 
			
				 190  | 
			
				 280  | 
			
				 400  | 
			
				 400  | 
			
				 340  | 
			
				 80  | 
			
				 662  | 
			
				 400  | 
			
				 500  | 
			
				 24  | 
			
				 440  | 
			
				 
					2000  | 
			
				 
					5500-  | 
		
| 
				 LS630  | 
			
				 3000  | 
			
				 630  | 
			
				 730  | 
			
				 686  | 
			
				 14  | 
			
				 8  | 
			
				 450  | 
			
				 190  | 
			
				 355  | 
			
				 500  | 
			
				 450  | 
			
				 420  | 
			
				 80  | 
			
				 763  | 
			
				 500  | 
			
				 630  | 
			
				 24  | 
			
				 555  | 
		||
| 
				 LS800  | 
			
				 3000  | 
			
				 800  | 
			
				 920  | 
			
				 868  | 
			
				 18  | 
			
				 16  | 
			
				 550  | 
			
				 340  | 
			
				 450  | 
			
				 630  | 
			
				 550  | 
			
				 520  | 
			
				 80  | 
			
				 970  | 
			
				 632  | 
			
				 800  | 
			
				 30  | 
			
				 650  | 
		||
| 
				 LS1000  | 
			
				 3000  | 
			
				 1000  | 
			
				 1120  | 
			
				 1068  | 
			
				 18  | 
			
				 16  | 
			
				 650  | 
			
				 360  | 
			
				 560  | 
			
				 710  | 
			
				 650  | 
			
				 630  | 
			
				 80  | 
			
				 1190  | 
			
				 710  | 
			
				 1000  | 
			
				 30  | 
			
				 760  | 
			
				 6000-60000  | 
		|
| 
				 LS1250  | 
			
				 3000  | 
			
				 1250  | 
			
				 1370  | 
			
				 1318  | 
			
				 18  | 
			
				 16  | 
			
				 800  | 
			
				 380  | 
			
				 710  | 
			
				 800  | 
			
				 800  | 
			
				 760  | 
			
				 80  | 
			
				 1440  | 
			
				 800  | 
			
				 1250  | 
			
				 30  | 
			
				 910  | 
		
GX系列螺旋輸送機外型尺寸:
| 
				 型號  | 
			
				 W  | 
			
				 A  | 
			
				 B  | 
			
				 C  | 
			
				 D  | 
			
				 N  | 
			
				 R  | 
			
				 Y  | 
			
				 L  | 
			
				 K  | 
			
				 M  | 
			
				 S  | 
			
				 P  | 
			
				 O  | 
			
				 H  | 
			
				 V  | 
			
				 J  | 
			
				 T  | 
			
				 G  | 
		
| 
				 GX150  | 
			
				 2000  | 
			
				 170  | 
			
				 236  | 
			
				 216  | 
			
				 10  | 
			
				 8  | 
			
				 190  | 
			
				 190  | 
			
				 112  | 
			
				 140  | 
			
				 100  | 
			
				 135  | 
			
				 17  | 
			
				 270  | 
			
				 110  | 
			
				 160  | 
			
				 16  | 
			
				 195  | 
			
				 1000、1500、2000  | 
		
| 
				 GX200  | 
			
				 2500  | 
			
				 220  | 
			
				 306  | 
			
				 272  | 
			
				 10  | 
			
				 8  | 
			
				 220  | 
			
				 190  | 
			
				 112  | 
			
				 180  | 
			
				 200  | 
			
				 165  | 
			
				 25  | 
			
				 308  | 
			
				 140  | 
			
				 200  | 
			
				 16  | 
			
				 250  | 
			
				 
					1500  | 
		
| 
				 GX250  | 
			
				 2500  | 
			
				 270  | 
			
				 356  | 
			
				 330  | 
			
				 10  | 
			
				 8  | 
			
				 270  | 
			
				 190  | 
			
				 140  | 
			
				 220  | 
			
				 195  | 
			
				 28  | 
			
				 356  | 
			
				 200  | 
			
				 260  | 
			
				 20  | 
			
				 300  | 
		||
| 
				 GX300  | 
			
				 2500  | 
			
				 320  | 
			
				 428  | 
			
				 385  | 
			
				 14  | 
			
				 8  | 
			
				 300  | 
			
				 190  | 
			
				 214  | 
			
				 270  | 
			
				 225  | 
			
				 28  | 
			
				 443  | 
			
				 240  | 
			
				 320  | 
			
				 20  | 
			
				 350  | 
		||
| 
				 GX400  | 
			
				 3000  | 
			
				 420  | 
			
				 528  | 
			
				 492  | 
			
				 14  | 
			
				 8  | 
			
				 350  | 
			
				 190  | 
			
				 224  | 
			
				 340  | 
			
				 300  | 
			
				 280  | 
			
				 30  | 
			
				 533  | 
			
				 320  | 
			
				 400  | 
			
				 25  | 
			
				 430  | 
			
				 
					1500  | 
		
| 
				 GX500  | 
			
				 3000  | 
			
				 528  | 
			
				 662  | 
			
				 612  | 
			
				 17  | 
			
				 8  | 
			
				 450  | 
			
				 190  | 
			
				 280  | 
			
				 400  | 
			
				 340  | 
			
				 35  | 
			
				 662  | 
			
				 400  | 
			
				 500  | 
			
				 25  | 
			
				 490  | 
		||
| 
				 GX600  | 
			
				 3000  | 
			
				 628  | 
			
				 762  | 
			
				 720  | 
			
				 17  | 
			
				 8  | 
			
				 550  | 
			
				 190  | 
			
				 255  | 
			
				 500  | 
			
				 430  | 
			
				 40  | 
			
				 760  | 
			
				 500  | 
			
				 600  | 
			
				 30  | 
			
				 560  | 
		
	
 
	
輸送機廠家提示:請通過正規渠道購買奧創輸送機,以保障您的合法權益!
 訂購網址請登錄河南奧創機械有限公司官方網站: www.sxhkyq.com 24小時服務熱線:13353676726 


