FZC系列振動放礦機(振動出礦機)
文章作者:奧創機械發布時間:2018/10/10 17:23:31瀏覽次數:
                        
                    
	
 
	FZC系列振動出礦機(振動出礦機)是一種以振動電機為激振源的顛振型慣性振動出礦設備,廣泛適用于冶金、化工、建材、煤炭等礦業。是礦石及其它物料的放出,給料或裝車的理想設備。 

☆產品特點
 
    振動出礦機與其它形式的出礦機相比具有以下優點:
 
   1.節省能源、出礦效率高、出礦均勻且易控制;
 
   2.設備制造簡單,安裝工程量小,成本較低;
 
   3.由于振動大減少了懸拱、卡礦現象;
 
   4.能有效地防止含水量大的礦石跑礦;
 
   5.應用范圍廣,適應性強。
 
☆使用條件
 
     振動出礦機對環境條件要求如下:
 
  1.環境溫度不大于+40℃;
 
  2.空氣相對濕度不大于90%;
 
  3.可用于多塵和臺極上載礦量有較動的場合。 
☆型號說明:
	
 
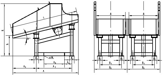
FZC系列單臺板振動出礦機結構圖
	
 
FZC系列雙臺板振動出礦機結構圖
	
 
振動放礦機安裝示意圖
	
 
		附注及說明 
	
	
		H-巷道高度                                         e-(B0-b3)÷2-b1 
	
	
		H1-礦車高度                                        E-查表二 
	
	
		B-巷道寬度                                     F-E+e 
	
	
		B0-礦車寬度                                    h-查表二 
	
	
		b1-伸入礦車深度(1/5~1/4) B0               h0-眉線高,(表一) 
	
	
		b2-臺面距礦車高度(100~200)                h1-(H1+ b1)-h 
	
	
		b3-軌距                                        h2-(H1+ b2+S max×L)-h1 
	
	
		α-臺面傾角                                    h3-H1+ b2+S max-L 
	
	
		Q-眉線角                                       LA-查表 
	
	
		I-臺面長度                                     δ-45 °~55° 
	
	
		n-安裝余量(60~200)                         D-溜井(料斗)直徑 
	
	
		1.巷道頂點N,連接NM2制作峒室頂板。 
	
	
		2.設計中b2值應盡量小,減小物料對車箱的沖擊力。 
	
	
		3.前壁框架可用槽鋼制作。 
	
	
		4.振動出礦機底座用混凝土澆注而成。 
	
	FZC系列振動出礦機技術特性及埋設參數(表一) 
 
	系列振動出礦機結構及安裝尺寸 
	  
 
	
	振動放礦機廠家提示:請通過正規渠道購買奧創振動放礦機,以保障您的合法權益!
訂購網址請登錄河南奧創機械有限公司官方網站: www.sxhkyq.com 24小時服務熱線:1 335 36 767 26
                    下一篇:CZQ(B)料倉振動防堵塞器上一篇:振動篩各種彈簧配套齊全
            

